Calma Estate

Torrevieja · Los Altos · ALICANTE Apartament | Rynek pierwotny Ref: RSE-75652

Cena
285.000€
Cena
285.000€

Torrevieja · Los Altos · ALICANTE Apartament | Rynek pierwotny Ref: RSE-75652

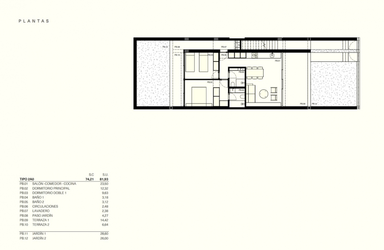
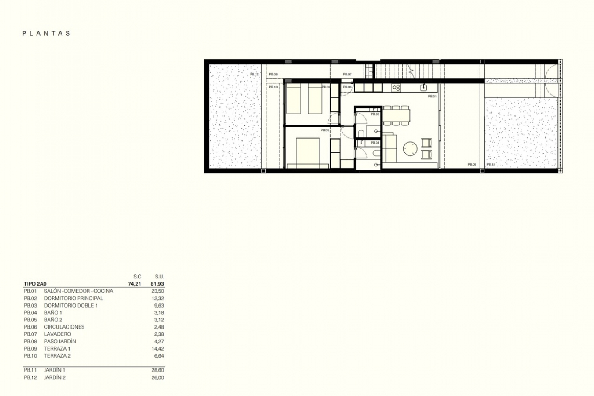
  • 82m2
  • 150m2
  • 2
  • 2
  • Tak

Charakterystyka

Sypialnie:2
Łazienka:2
Powierzchnia:82m2
Działka:150m2
Basen:Tak
Unfurnished
Communal Pool
Fitted wardrobes
Underground parking
Double glazing
Gated community
Communal Garden
Mains Electricity
Mains Water
Close To Town And Amenities
Country Views

Złóż zapytanie

Responsable del tratamiento: Calma Investing Properties, Finalidad del tratamiento: Gestión y control de los servicios ofrecidos a través de la página Web de Servicios inmobiliarios, Envío de información a traves de newsletter y otros, Legitimación: Por consentimiento, Destinatarios: No se cederan los datos, salvo para elaborar contabilidad, Derechos de las personas interesadas: Acceder, rectificar y suprimir los datos, solicitar la portabilidad de los mismos, oponerse altratamiento y solicitar la limitación de éste, Procedencia de los datos: El Propio interesado, Información Adicional: Puede consultarse la información adicional y detallada sobre protección de datos Aquí.

Podobne właściwości

WhatsApp